Bureaux neufs de 130 m² à 265 m² sur Alpespace
A louer, au cœur du Parc d’activités Alpespace, dans un bâtiment neuf aux prestations soignées, deux plateaux de bureaux en RDC de 130 et 135 m², jumelables pour former un plateau de 265 m².
Idéal pour l'implantation ou le développement d’une activité dans les secteurs du service à l'industrie, de la montagne pour bénéficier de la présence des entreprises déjà implantées sur le Parc. L’offre répondra aux besoins des entreprises soucieuses de leur environnement de travail, de la qualité des locaux et de l’accueil, des prestations associées.
Caractéristiques des locaux :
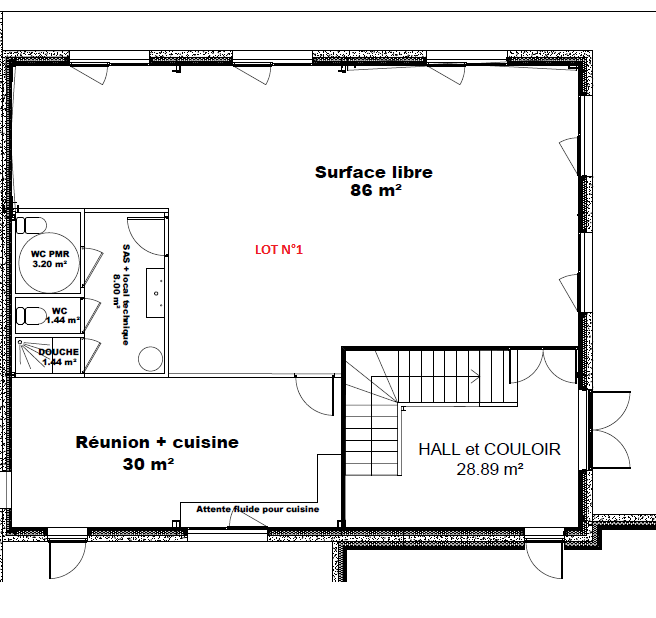
- LOT 1 : 130 m²- 86 m² à cloisonner+ 30 m² de salle de réunion/kitchenette avec accès terrasse + bloc sanitaire
- LOT 2 : 135 m² - 100 m² à cloisonner+ 21 m² de salle de réunion/kitchenette avec accès terrasse + bloc sanitaire
- Aménagements intérieurs réalisés selon besoins
- Chaque plateau comprend : toilettes PMR, douche, kitchenette/Salle de Réunion
- Bâtiment équipé de panneaux solaires en autoconsommation
- 15 places de stationnement VL et bornes de recharge électrique
Conditions :
- Location bail 3/6/9
- Disponibilités : 3ème trimestre 2025
Ses +:
- Bâtiment neuf aux prestations soignées
- Espaces modulables qui s'adapte à vos besoins
- Accès à un espace de stockage avec chargement/déchargement facilité
- Installation solaire en autoconsommation pour une consommation énergétique et une empreinte carbone réduite
- Lot à associer : des ateliers jusqu’à 600 m²

